Níall McLaughlin a primit anul acesta Royal Gold Medal, în urma votului unanim al juriului RIBA (Royal Institute of British Architects). Nu ne surprinde. Cu peste 30 de ani de practică McLaughlin nu doar că proiectează urmându-și îndeaproape principiile, ci și predă generațiilor succesive de studenți un alt fel de a face arhitectură.
L-am cunoscut și noi la *FAST (Festival for Architecture Schools of Tomorrow) și am aflat că, în cariera pedagogică, se poziționează mai degrabă ca un îndrumător decât ca maestru. Parafrazăm: „Să spun eu ce trebuie făcut mă plictisește puțin. Îmi place mult să aflu ce vor ceilalți și cum gândesc ei. Iar dacă pot, să-i ajut să ajungă la capătul propriilor idei.”
În Zeppelin 175 i-am dedicat un dosar amplu, precedat de un interviu realizat de Cătălina Frâncu, pe care îl publicăm acum și online:
*Ansamblul Master’s Field Balliol College
INTRO
Reporter: Cătălina Frâncu
Photo: Nick Kane, NMLA, David Valinsky, Níall McLaughlin
L-am întâlnit pe Níall McLaughlin prima dată la Festivalul Școlilor de Arhitectură FAST. Mi-a atras atenția felul în care a vorbit despre educația de arhitectură și predispoziția sa de a fi găsit mereu înconjurat de un grup de studenți pe care îi asculta cu interes. Cu multă curiozitate i-a întrebat despre lucrările lor de diplomă, metodele de predare, greutățile și bucuriile de a fi studenți la Arhitectură. Căldura pe care a transmis-o a făcut ca studenții să-l caute chiar și în timpul petrecerilor, spre amuzamentul tuturor.
L-am întrebat despre începuturile carierei de arhitect și despre metodele preferate de predare și ne-a răspuns cu entuziasm și cu multă înțelegere pentru schimbările prin care trece fiecare generație.
Interviul împreună cu trei proiecte orientate către bunăstarea fizică și psihică a studenților indică prioritățile profesionale ale lui Níall și ale echipei sale în timp ce ne descoperă profilul pedagogic al unuia dintre profesorii foarte plăcuți ai disciplinei.
Dincolo de practică și predare, Niall McLaughlin Architects se preocupă de teme ca îngrijirea pentru vârstnici, implicarea în viețile lor și starea studenților într-un climat care izolează mai degrabă decât aduce împreună. Proiectele sunt desenate, deci, astfel încât să încurajeze interacțiunea, să îmbunătățească relațiile între locuitori și să facă loc hazardului.
Conversația cu Níall a avut loc la FAST (Festival for Architecture Schools of Tomorrow), unde am putut să petrecem câteva zile cu invitații, cu studenții și cu școlile de arhitectură.
Despre construcție, învățare ca practică profesională și despre curiozitatea de-a-i asculta pe ceilalți
C.F.: Pentru început, aș vrea să te întreb despre schimbările pe care le-ai observat în lunga carieră didactică. Sunt lucrurile diferite acum față de propria studenție?
N.M.: Când am început să profesez, aveam în jur de 26–27 de ani și eram în Londra, deși nu eram originar de acolo. De fapt, nu cunoșteam prea mulți arhitecți în oraș. Așa că am început să predau și, în paralel, să construiesc la scară mică. Am lucrat cu două grupuri de oameni: artizani și studenți. Ei erau, într-un fel, comunitatea mea profesională. Activam pe cont propriu, din camera de zi a locuinței mele. Așadar, reprezentările mele despre lume și conversațiile pe care le aveam erau influențate de interacțiunea cu cei care lucrează direct cu materia. Am încercat întotdeauna să păstrez acest spirit în practica mea. Nu consider predarea ca pe un act unilateral. Mă implic în activitatea didactică, pentru că îmi doresc ceva de la ea – caut resurse care să-mi susțină și să-mi îmbogățească propria practică creativă. Așadar, este un schimb real, cu sensuri și beneficii în ambele direcții.
Pentru mine, acesta este nucleul întregului demers. În clipa în care nu mai are loc acest schimb, înseamnă că nu predau, ci predic. Când am idei asupra cărora reflectez timp îndelungat – concepte dificil de integrat direct în practica profesională –, le pot introduce în cadrul didactic ca subiecte de explorare pe parcursul mai multor ani, pentru a le testa potențialul.
Iar atunci când acest potențial iese la iveală, integrarea lui în practica propriu-zisă devine mult mai firească. Cred că vorbeam despre asta cu niște studenți, recent: faptul că uiți uneori de dimensiunea profesională. Devii arhitect din prima zi a primului an de studiu și, odată cu asta, începi să practici. Nu există ani de pregătire până „devii” arhitect. Poți să te adresezi orașului prin proiectele pe care le propui. Iar atunci când termini școala, îți continui practica profesională și continui să înveți. Învățarea trebuie să fie un proces continuu, pe tot parcursul vieții. Așa că, din prima zi a facultății, practici și înveți simultan.
Revenind la nuanța întrebării tale: cred că atât în Marea Britanie, cât și în America – și poate și aici – practica profesională a devenit tot mai disociată de procesul educațional. Nu sunt suficienți practicieni implicați în activitatea de predare în aceste școli. În mediile didactice în care activez eu, precum și în cele din Dublin, unde am studiat, am fost format de profesori care lucrau în birourile lui Louis Kahn, Mies van der Rohe, James Stirling, oameni care aveau propriile birouri de arhitectură și care ne formau profesional prin prezența lor activă în atelier. Astăzi însă mulți dintre cei care predau vin dintr-un cadru pur teoretic și privesc practica arhitecturală ca pe un domeniu complet diferit. Ce mi-a plăcut la ceea ce am văzut în România – în special la această conferință – este că mulți studenți sunt îndrumați de practicieni.
C.F.: Lucrezi, așa cum spuneai, la construirea unei comunități de învățare, nu la impunerea unei dogme. Totuși, modelul acela încă există, sunt arhitecți care predau urmărind să lase o moștenire intelectuală în urma lor. Ce te determină să faci lucrurile altfel?
N.M.: Există o presupunere în întrebarea ta cu care nu sunt sigur că sunt complet de acord: nu cred că acela este un mod greșit de a preda. Mulți oameni au învățat în astfel de contexte și au beneficiat enorm din aceste relații de tip maestru–discipol. Așadar, această relație nu este în sine eronată. Cred că pentru mulți a fost o formulă fertilă de formare. Se potrivește unui anumit tip de student și unui anumit tip de profesor. Ceea ce mă determină să procedez diferit este faptul că eu nu am fost un astfel de student, prin urmare nu pot fi un astfel de profesor. Dar văd alți profesori și studenți excelenți care funcționează bine în acel tipar, iar această diversitate mă bucură. Motivul pentru care nu predau în acel fel este unul de ordin personal: nu sunt înclinat spre acea abordare. Îmi place mai mult să aflu ce gândește celălalt decât să îi spun ce gândesc eu. Îmi stârnește mai mult interesul, în fond, m-am plictisit de propriul meu discurs. Prefer să învăț de la ceilalți.
Ceea ce facem noi este să construim un cadru care spune: „Arată-ne ce ai, adu ideile pe care le-ai visat”. Îmi place să cred că suntem buni în ceea ce aș numi „coaching”, adică ceva de genul: „Ah, dacă te gândești să faci asta, pot să-ți arăt această resursă sau acel proiect…” Este mai degrabă un mod de a-i ajuta să-și structureze ideile și să le crească. Și ceea ce este esențial de înțeles e că asta nu vine dintr-un gest de generozitate unilaterală, ci dintr-un câștig reciproc: în timp ce urmăresc cum ideile lor înfloresc, îmi spun în sinea mea: „Uite o ocazie de învățare și pentru mine”.
C.F.: Ștefan Ghenciulescu, redactorul-șef al revistei Zeppelin, spunea recent că se simte mai degrabă ca o moașă decât ca un maestru, citându-l pe arhitectul și profesorul grec Elia Zenghelis.
N.M.: Este o comparație foarte frumoasă și mă bucur că ai adus-o în discuție. Tocmai am petrecut ceva timp în dialog cu un grup de studenți, iar toți mi-au spus că este cel mai carismatic profesor pe care l-au întâlnit. E încurajator să știi că poți fi o „moașă carismatică”.
Cea mai îndelungată colaborare didactică a mea a fost cu Yeoryia Manolopoulou, alături de care am predat mai bine de 20 de ani la Bartlett – UCL. Obișnuiam să glumim pe seama propriilor noastre stiluri: eu sunt un profesor „propozițional”, iar ea este una „interogativă”. Eu spuneam: „Uite, ai putea face asta sau cealaltă”, iar ea intervenea imediat cu un: „Dar de ce?” [râde]. Am descris întotdeauna stilul nostru de predare ca pe o mașină condusă de două persoane: una apasă accelerația, cealaltă ține mâna pe frână. Cred că există moduri diferite de a preda, iar studenții, de cele mai multe ori, privesc către profesorii lor gândindu-se: „Aș putea fi așa sau aș putea fi altfel…”
C.F.: Cum ai caracteriza relația actuală a studenților cu meșteșugul?
N.M.: Este o întrebare complexă. Studenții pe care îi îndrum… au la dispoziție un atelier de lucru excepțional… poate mai puțin utilizat acum, odată cu avalanșa acestor instrumente digitale „geeky”. Dar cei mai buni coboară în atelier, lucrează cu materiale reale și creează obiecte extrem de frumoase cu mâinile lor. Așadar, există încă o legătură semnificativă cu meșteșugul. Această dimensiune a fost întotdeauna o direcție importantă în practica mea pedagogică. Totuși, simt că lucrurile încep să se schimbe. Studenții nu au găsit încă o manieră complet creativă de a utiliza aceste instrumente sau, cel puțin, nu constant. Aș face, de asemenea, o distincție clară între artizanul care produce obiecte cu mâinile sale și arhitectul al cărui rol nu este să construiască el însuși totul. Arhitectul învață să fie prezent în preajma celor care lucrează direct cu materia și, în același timp, să-și păstreze integritatea propriei practici în acest context al contactului direct cu materialul. Cred că acest echilibru nu este întotdeauna bine înțeles. Idealul ar fi ca, atunci când artizanul primește desenul arhitectului, să înțeleagă exact ceea ce arhitectul știe. E ca la IKEA: când primești instrucțiunile de montaj și te întrebi cât de mult a anticipat autorul lor întrebările pe care urmează să ți le pui în timpul asamblării. Rolul arhitectului este să înțeleagă suficient de bine procesul de construcție pentru a ști ce se poate face și ce nu, și apoi să-i comunice constructorului ce vrea să realizeze, având în minte întrebările, dilemele și complicațiile care pot apărea în execuție. Un desen arhitectural de calitate încorporează această înțelegere. E ca o hartă bine făcută. Dacă o privești și știi că e corectă, dar nu o poți descifra, te gândești: „Problema este la mine, nu la hartă”. Cred că un desen reușit, făcut de un arhitect bun, trebuie să aibă această calitate de transparență și claritate. Și nu pretindem că noi putem realiza acel obiect, că-l putem „meșteri”, ci că înțelegem suficient din lumea celor care lucrează cu materialul, astfel încât să putem sintetiza diverse forme de meșteșug într-un demers coerent.
C.F.: Crezi că putem înțelege cu adevărat lumea celorlalți fără a o experimenta direct?
N.M.: Cred că în școlile de arhitectură ar fi foarte benefic să reflectăm mai mult la asta. Pe vremuri, aveam ceva numit „studio de tehnologie” în fiecare săptămână, unde realizam desene tehnice de execuție. Începeam din primul an cu o axonometrie a unei cărămizi, iar în anul V ajungeam să desenăm complet detaliile de execuție ale propriilor proiecte. Era un exercițiu extrem de util, întrucât cei care veneau să ne îndrume în cadrul acestui studio nu erau profesori din atelierul de proiectare. Erau profesioniști pasionați de tehnologia construcțiilor, iar în acele vremuri obișnuiau să analizeze desenele noastre tehnice atingându-le cu vârful pipei și întrebând: „La ce servește asta?”, „Cum funcționează?” sau: „Cum ai rezolva acest detaliu?” Cred că această latură a arhitecturii – capacitatea de a înțelege și de a comunica riguros un mod de construire – ar trebui cultivată cu mai multă insistență, astfel încât absolventul să posede tipul de dexteritate așteptată, de exemplu, de la un chirurg. Chiar dacă nu vorbim despre o dexteritate manuală, ci despre o dexteritate mentală, ar trebui să poți desena o clădire care poate fi construită, iar această competență cred că nu mai este predată suficient de riguros în școlile de arhitectură de azi.
C.F.: Ai spune că materialele cer o formă anume, așa cum obișnuia să spună Louis Kahn: „Ce vrei, cărămidă?”
N.M.: Există, la Kahn, o dimensiune mistică și, deși admir profund multe aspecte ale operei sale, nu pot adera în întregime la această abordare. Geometric și în felul în care descrie materialele, el operează cu ceea ce aș numi un idealism platonic. Cu alte cuvinte, caută o formă perfectă implicită, geometrică, serenă, care pare să existe dincolo de timp și de convențiile sau practicile umane. Aceasta este dimensiunea transcendentală a lucrării sale, față de care sunt puțin sceptic. Îi prefer proiectele în care se apropie de o abordare vernaculară – în sens metaforic, desigur – în care se ancorează mai mult în natura umană. Dacă iei o bucată de lemn și o întrebi ce vrea să fie, ea îți va spune că vrea să se întoarcă și să devină copac. Piatra vrea să redevină munte. Iar tu, ca arhitect, ai „capturat” aceste materiale și încerci să le transformi în altceva. Așadar, ceea ce trebuie să înțelegi nu este ce ar dori ele, ideal, să fie, ci ce au fost și ai întrerupt tu, intervenind. Pentru că, dacă nu înțelegi natura profundă a lemnului – dacă nu știi cum absoarbe umezeala, cum se pătează, cum se curbează sau se răsucește –, vor apărea probleme. Trebuie să înțelegi natura biologică sau geologică a materialului. Pe lângă asta, mai e ceva: felul în care am „înculturat” materialele, simbolurile și sensurile pe care le atribuim acestora. De exemplu, dacă stăm acum în această cameră și privim tapetul, nu avem parte de o experiență estetică complet neutră. Înțelegem că el poartă cu sine istoria secolului al XIX-lea, aspirațiile sociale și culturale asociate acelui model decorativ. Așadar, înțelegerea unui material implică simultan o dimensiune culturală și una biologico-geologică. Nu e vorba, după mine, despre ideea canonică potrivit căreia materialul ar avea o vocație mistică.
C.F.: Asta îmi amintește de replica vulpii din Micul Prinț: „Devii responsabil, pentru totdeauna, de ceea ce ai îmblânzit”.
N.M.: Cred că o să iau gândul ăsta cu mine.
Îmi place foarte mult numele revistei voastre. Pot să-ți spun o poveste despre zeppelin?
C.F.: Sigur, ascult!
N.M.: Nu știu dacă e adevărată sau nu, doar o transmit mai departe. L-am întâlnit pe un fost profesor de-al meu…, era trecut de 90 de ani și eu mă întorsesem în Dublin după mult timp. M-a invitat la el acasă, să bem o sticlă cu vin. Am ajuns, a deschis vinul, am stat de vorbă, iar el mi-a povestit cum a lucrat în biroul lui Mies van der Rohe, în Chicago. L-am întrebat: „Cum era Mies ca om?” Și mi-a răspuns: „Era extrem de simpatic, jovial, relaxat. Ne ducea deseori la apartamentul lui din Chicago, unde stăteam cu studenții și colegii la un pahar de vorbă, iar el ne povestea tot felul de lucruri”.
L-am rugat să-mi spună una dintre poveștile lui. Mi-a povestit o întâmplare din perioada în care Mies lucra în biroul lui Peter Behrens, arhitectul faimos pentru Fabrica de Turbine AEG, unul dintre pionierii modernismului. La acea vreme, în biroul lui Behrens se aflau și Walter Gropius, Le Corbusier și Mies van der Rohe. Toți lucrau acolo, așa mi-a spus. Se pare că Le Corbusier se lua foarte în serios și era, în plus, extrem de miop. Așa că Mies și Gropius au desenat un dirijabil pe geamul atelierului, cu vedere către oraș. Când l-a văzut, Le Corbusier a exclamat: „Priviți! Un zeppelin!” [râsete]
*
FAST (Festival for Architecture Schools of Tomorrow) este un eveniment anual inițiat în 2023 de Ordinul Arhitecților din România (OAR), menit să creeze oportunități de colaborare între școlile de arhitectură din România și să încurajeze dialogul între educația academică și practica profesională. Festivalul reunește cele cinci facultăți de arhitectură din țară –Timișoara, Cluj-Napoca, Oradea, Iași și București – și extinde colaborarea la nivel regional și internațional. (…) FAST se adresează studenților și profesorilor din domeniul arhitecturii, precum și arhitecților practicieni, factorilor de decizie și publicului larg interesat de calitatea mediului construit. Prin intermediul Festivalului, OAR creează o platformă de dialog și colaborare pentru viitorul profesiei și al orașelor.
Níall McLaughlin Architects – trei proiecte
Ansamblul Master’s Field Balliol College
*Ansamblul Master’s Field Balliol College
Planul director integrează opt clădiri rezidențiale pentru studenți, proiectate special în acest scop, un apartament destinat corpului profesoral și un pavilion multifuncțional. Ansamblul edificat delimitează o succesiune de spații exterioare amenajate: grădini interioare plantate, alei umbrite de arbori și borduri vegetale. Colegiul are acum posibilitatea de a găzdui integral populația sa studențească de licență în campus.
Clădirile cu un regim redus de înălțime sunt dispuse de-a lungul curburii unei margini de teren de cricket și completează un ansamblu existent de locuințe studențești proiectate în anii ’90 de McCormack Jamieson Prichard Architects. Cele 225 de camere de studiu complet mobilate, cu băi proprii, sunt grupate în unități funcționale ce beneficiază de spații comune: săli de socializare, spălătorii, spații pentru colectarea deșeurilor și adăposturi acoperite pentru biciclete.
Un pavilion sportiv, amplasat central, are vedere asupra terenului de cricket și include un teren de squash, vestiare și o sală multifuncțională. Structura sa ușoară – realizată din lemn de castan-dulce – cadrează perspectivele prin ferestre culisante care deschid spațiul interior spre o terasă acoperită, înălțată. Interiorul pavilionului este definit de un tavan de lemn stratificat, articulat în planuri suprapuse, cu iluminat integrat. Balliol College și-a dorit un proiect care să reflecte spiritul spațiului colegial tradițional, punând accent pe bunăstarea studenților. Ambiția instituției a fost să reducă izolarea rezidențială și să acomodeze diferite profiluri academice printr-o diversitate tipologică în organizarea camerelor. Această viziune a ghidat întregul proces de proiectare. Schemele funcționale propun spații generoase, adesea cu dublă orientare, cu deschideri spre vegetație abundentă și cu mobilier realizat la comandă. Dotările includ soluții pentru o gamă largă de cerințe de accesibilitate: suprafețe hipoalergenice, perne care vibrează, băi adaptabile și ascensoare de evacuare care permit accesul integral pentru utilizatori în scaun rulant.
Dispunerea clădirilor răspunde modelului de utilizare zilnică a campusului. Dormitoarele sunt organizate în grupuri, în jurul unor spații comune locale, accesate prin case de scară vitrate care duc către bucătării sau camere comune, toate gândite pentru a facilita interacțiuni spontane.
Această organizare primară definește nu doar planul camerelor, ci și modul de așezare a clădirilor în jurul curților, străzilor și grădinilor. Construcțiile devin limite și catalizatori pentru spațiile exterioare colective. Ferestrele sunt adâncite în goluri ample pentru a conferi intimitate ocupanților. Fațadele sunt compuse într-o rețea de pilaștri și elemente orizontale din prefabricate placate cu cărămidă, dispuse modular în raport cu repartizarea camerelor. Ferestrele deschise sunt flancate de panouri prefabricate cu texturi reliefate într-un motiv țesut.
*Plan parter, zona careului superior
Planul urbanistic răspunde unei varietăți de clădiri istorice existente și unui context morfologic complex. Proiectul mediază tranziția de scară și tipologie între țesutul domestic de vile înșiruite și edificiile instituționale din proximitatea centrului civic al Oxfordului. Această reconciliere formală este realizată prin adoptarea unui limbaj arhitectural comun, aplicat deliberat într-o serie de clădiri repetitive, dar la scară domestică. Paleta materială este constantă și de calitate superioară, aleasă pentru a completa contextul istoric existent. Se face o distincție subtilă între fațadele orientate spre grădini și cele care mărginesc strada. În zonele cu trafic intens, camerele sunt ridicate pe un soclu masiv din zidărie. Interstițiile dintre clădiri generează perspective publice către profunzimea amplasamentului.
*Secțiune prin pavilionul cu spații comune
Proiectul, realizat în regim D&B („design and build”, proiect plus construcție), valorifică standardizarea și prefabricarea: băi modulare, cadre CLT/glulam și fațade prefabricate. Furnizorii locali din Regatul Unit au fost implicați pentru a asigura controlul calității și a reduce amprenta de carbon și risipa.
Conceptul arhitectural pornește de la o analiză atentă a nevoilor studenților, la toate scările: de la camera individuală la spațiile de interacțiune, la grădini, alei și curți, cu deschidere spre scara urbană mai largă.
Info & credite – Balliol College Master’s Field Development
Arhitectură: Níall Mclaughlin Architects
Dezvoltator: Bam Construction Ltd
Consultanță: Project Manager Bidwells
Inginerie mecanică și electrică: Harley Haddow
Inginerie de structură și infrastructură: Smith And Wallwork Engineers
Supervizor calitate: Gleeds
Consultanță proiectare: Turnberry Planning
Inginerie civilă: Smith And Wallwork Engineers
Planificare urbană: Bidwells Urban Design Studio
WongAvery Gallery, Cambridge
WongAvery Gallery este o sală dedicată repetițiilor și reprezentațiilor muzicale din cadrul Trinity Hall, Cambridge. Noua clădire este amplasată în centrul curții Avery, un spațiu care a fost inițial curtea de acces principal al colegiului, dar care și-a pierdut această funcțiune odată cu realizarea curții adiacente, Front Court. Scopul principal al proiectului a fost nu doar crearea unui spațiu dedicat exclusiv practicii și interpretării muzicale – atât de necesar –, ci și revitalizarea curții Avery printr-o intervenție de reamenajare peisagistică centrată pe noua construcție.
Locul a fost ales pentru proximitatea sa față de capela colegiului, însă prezenta mai multe provocări: curtea este flancată de clădiri protejate de gradele I și II, incluzând capelele colegiilor Trinity Hall și Clare, constituind astfel un sit cu o sensibilitate istorică extrem de ridicată. A fost necesară păstrarea iluminării naturale a a golurilor existente și protejarea dormitoarelor adiacente de disconfortul acustic. Mai mult, șantierul era accesibil exclusiv printr-un pasaj pietonal îngust, ceea ce a impus constrângeri severe privind aprovizionarea cu materiale și echipamente.
Soluția arhitecturală a constat în realizarea unui pavilion independent, care să devină piesa centrală a curții reconfigurate. Este un obiect de dimensiuni reduse, dar cu o prezență monumentală, a cărui singularitate contrastează cu complexitatea stratificată a contextului construit. Această strategie a permis păstrarea luminatoarelor existente și, deși nu existau precedente pentru amplasarea de noi construcții în interiorul curților colegiale din Cambridge, proiectul a fost avizat la nivel național de Historic England, datorită contextului patrimonial excepțional. Galeria este realizată ca structură portantă, din piatră Portland și beton prefabricat, compusă din volume cubice generate pe planul unei cruci grecești. Spațiul de interpretare se află în zona centrală, în timp ce publicul este așezat în brațele crucii, ale cărorpereți laterali sunt prevăzuți cu rafturi pentru partituri. Deasupra centrului crucii, un lanternou aduce lumină naturală și contribuie la optimizarea acusticii prin creșterea volumului și a suprafețelor de reverberație. Cele patru brațe pot fi complet deschise, transformând galeria într-un foișor deschis, ideal pentru reprezentații în aer liber.
Galeria a fost proiectată și pentru a adăposti clavecinul colegiului, un instrument muzical deosebit de sensibil, care necesită control climatic strict pentru a rămâne acordat. Cele patru colțuri ale planului în cruce conțin canale verticale de distribuție a aerului, alimentate dintr-o cameră tehnică mascată sub pavilion, care asigură temperatura și umiditatea constante.
Amenajarea peisageră semnată de Kim Wilkie amplasează clădirea pe o platformă centrală pavată, înconjurată de straturi plantate predominant cu arbuști verzi și plante cățărătoare. Piatra Portland, de nuanță deschisă, din care este construită galeria, contrastează subtil cu vegetația și cu zidăria în nuanțe de miere a clădirilor existente.
Clădirea contribuie semnificativ la îmbunătățirea infrastructurii culturale a colegiului pentru studenții și cadrele implicate în muzică. Prin expunerea activităților muzicale care anterior aveau loc în spații obscure, proiectul amplifică vizibilitatea acestor practici și îmbogățește viața culturală a colegiului în ansamblu.
*Secțiune lungă
Info & credite – Song School
Arhitectură: Níall Mclaughlin Architects
Suprafață: 73 M2
Client: Trinity Hall
Dezvoltator/Contractor: Barnes Construction
Structură: Smith & Wallwork
Inginerie mecanică și electrică: Max Fordham
Inginerie acustică: Gillieron Scott Acoustic Design
Peisagistică: Kim Wilkie
Consultant Piatră: Harrison Goldman
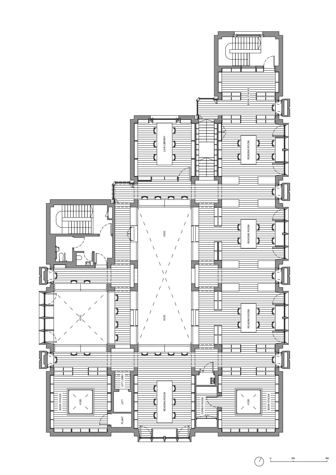
Magdalene College Library
Am fost desemnați, printr-un concurs desfășurat în 2014, să proiectăm noua bibliotecă a Magdalene College. Noua construcție înlocuiește facilitățile înghesuite și inadecvate din clădirea listată de gradul I Pepys Building aflată în imediata vecinătate, oferind un spațiu mai generos care include o bibliotecă extinsă, un depozit de arhivă și o galerie de artă.
Clădirea este amplasată într-un sit istoric extrem de sensibil, pe linia mediană dintre Master’s Garden – un spațiu închis și mai retras – și Fellows’ Garden, o grădină mai deschisă. Amplasamentul extinde compoziția cvadrangulară a curților colegiului, derivată din structura monastică originară a sitului universitar.
Accesul la bibliotecă se face din Second Court, printr-o poartă discretă, apoi pe sub o tisă veche. Din această zonă umbrită se percepe prezența râului care se deschide la marginea peluzei. Ne-am dorit ca parcursul prin clădire să se constituie într-o experiență graduală, care urcă progresiv spre lumină. Pe acest traseu, spațiul se deschide spre camere de lectură, galerii și locuri intime de lectură sau contemplație. În punctul cel mai înalt, biblioteca oferă perspective ample spre peluză și apă. Am urmărit să generăm o diversitate de moduri prin care utilizatorii să-și poată găsi locul în funcție de dispoziție: fie într-o sală impunătoare, fie într-un salon mai restrâns, fie retrași într-o nișă personală.
Pentru noi, arhitectura de calitate constă în orchestrarea unei varietăți de experiențe subordonate unei structuri ordonatoare, în vederea atingerii armoniei. Noua bibliotecă este construită pe baza unei rețele logice, un țesut de elemente interdependente. O grilă regulată de coșuri de cărămidă susține atât planșeele, cât și rafturile de cărți și funcționează ca sistem pasiv de ventilație prin care aerul cald este evacuat ascensional. Între fiecare grup de patru coșuri este inserat un luminator, care aduce lumina naturală în spațiile interioare: aerul urcă, lumina coboară. Această dispunere repetitivă generează o ierarhie spațială firească: zone înguste pentru circulație și zone largi pentru lectură. Structura verticală portantă, din zidărie aparentă de cărămidă, este articulată cu elemente orizontale din lemn stratificat cu deschidere mare, într-o logică tectonică clară, ce întărește organizarea generală a spațiului. Astfel, se creează o urzeală structurală (o relație de „warp and weft”) – intuitivă pentru utilizatorii clădirii.
Materialitatea și morfologia bibliotecii derivă atât din contextul construit, cât și din cerințele beneficiarului de a realiza o clădire durabilă și sustenabilă. Clădirile istorice ale colegiului sunt realizate din zidărie portantă de cărămidă, cu planșee din lemn și acoperișuri în două ape cu frontoane pronunțate. Coșurile de fum animă linia cornișei, iar ancadramentele din piatră subliniază golurile. Am încercat să reinterpretăm acest set de elemente arhitecturale în noua clădire. Pentru traforurile ferestrelor am folosit lemn în loc de piatră, care, odată expus intemperiilor, se va patina într-un gri-argintiu asemănător pietrei vechi. Am colaborat îndeaproape cu echipa de șantier pentru a selecta o varietate de cărămizi capabile a reproduce calitățile tactilă și vizuală de tapiserie a fațadelor istorice. În același timp, biblioteca este o clădire contemporană, care integrează strategii inovatoare de ventilație pasivă pentru a minimiza consumul de energie și utilizează structuri din lemn stratificat inginerește pentru a reduce amprenta de carbon a construcției.
*Plan parter
*plan etaj 1
*plan etaj 2
*Secțiune
Info & credite – The New Library Magdalene College
Dezvoltator/Contractor: Cocksedge
Structură: Smith & Wallwork
Dezvoltator/Constructor: Cocksedge
Project manager: Savills
Supervizor calitate: Gleeds
Consultanță pentru acustică: Max Fordham
Controlul protecției la foc a clădirii: Mlm
Acest material a fost posibil datorita sprijinului Ordinului Arhitectilor din Romania.
FAST (Festival for Architecture Schools of Tomorrow) este un proiect prioritar al Ordinului Arhitecților din România, inițiat în 2023 și co-finanțat din Timbrul Arhitecturii. Festivalul este prima inițiativă ce reunește toate cele 5 școli de arhitectură din România într-un eveniment colaborativ pentru viitorul profesiei cu participarea practicienilor și deschidere pentru public. Tematica ediției de la Cluj-Napoca s-a numit „ d i v e r s e c i t y ” și a pus în discuție diversitatea fenomenelor care afectează orașele prezentului și oportunitățile pentru viitor.
DE PROIECTE

















































