Un soclu, doi monoliți, un pavilion și un spațiu verde comun. Noul ansamblu de locuit rupe ortogonalitatea cartierului, însă prelungește, comprimă și eliberează spațiul verde din împrejurimi. Construcțiile anexe transparente, streșinile largi, proporțiile, texturile și detaliile fine echilibrează și domesticesc gestul major. Afirmarea și deturnarea principiilor clasice sunt prezente concomitent la toate scările proiectului. (Zeppelin)
Text: Sancho Igual, Yves Guggenheim
Foto: Lukas Murer
*Plan de situație. O alchimie a locuirii: în partea din stânga, chioșcul și garajul pentru biciclete. În extrema de jos, grădini individuale
Loc, transparență, verdeață
Zona rezidențială verde este caracterizată în principal de clădiri de dimensiuni reduse și de structura permeabilă și deschisă a așezării acestora. În ceea ce privește dimensiunile, cele două clădiri compacte de patru etaje se ajustează la mediul construit din imediata apropiere. Amprenta lor este minimă (două, respectiv trei unități per etaj). Geometria poligonală și pozițiile orientate permit vederi uimitoare, atât către exterior din apartamente, cât și înăuntrul și în afara parcelei. Volumele individuale sunt poziționate la o distanță adecvată unul de celălalt, iar expresia lor este caracterizată prin geometrie și simplitate. Au fost evitate extensiile precum balcoane sau bovindouri, ce nu erau necesare în acest caz. Ca atare, spațiile exterioare ale apartamentelor sunt limitate la logii decupate din volume.
*Soclu și obiecte. Parterele blocurilor urmează să fie acoperite și ele de o căptușeală vegetală.
Centrul complexului este format dintr-o zonă comună primitoare. De aici se pot vedea bine cele două intrări ale clădirilor; un pavilion din lemn pe un singur nivel servește drept adăpost pentru biciclete și oferă o zonă de grătar acoperită. Acest loc nou-creat îi oferă așezării o nouă identitate și servește drept punct de întâlnire pentru toate generațiile. Aici, pe bănci sau la mese cu scaune se întâlnesc sau zăbovesc să socializeze rezidenții.
*Folie. Chioșcul pentru locuitori, cu bucătărie și spațiul pentru grătar
În ciuda densității și a prezenței unei soclu general de un nivel înălțime, ansamblul oferă o imagine mai degrabă verde. Postamentul generos este acoperit de un spalier acoperit de vegetație, ceea ce permite contopirea clădirii cu zona înconjurătoare. Clădirile sunt înconjurate și de o centură perforată de plante, cu plante cățărătoare și alte specii perene. Prin efectul de filtrare, centura îmbogățește locuirea de la parter. Piațeta centrală, care constă din dale de ciment de format mare turnate la fața locului, cu îmbinări vegetale, este completată de o zonă cu nisip și un leagăn. Întreaga grădină este încadrată de copaci diverși.
Expresie arhitecturală
Fațadele clădirilor sunt redate în tonuri sobre, de pământ. Anvelopa este o construcție economică, compusă din ziduri portante izolate termic. Fațada cu tencuială pieptănată conține două texturi diferite iar ferestrele panoramice de la etajele superioare sunt încadrate de elemente din ciment deschis la culoare. Tonul de bază al tencuielii este gri, dar dungile verticale aplicate sunt verde deschis. Combinația de texturi împarte fațadele în etaje individuale ușor de recunoscut.
Ferestrele sunt realizate dintr-o combinație durabilă de lemn și metal. Protecția solară este obținută prin obloane metalice pliante (pentru camere) și marchize textile verticale (pentru logii).
Construcția ușor înclinată a acoperișului acoperit de panouri solare este încadrată și ascunsă de o margine în consolă. Streașina orizontală largă de jur-împrejurul acoperișului este un element important al imaginii arhitecturale, oferind în același timp protecție.
Apartamentele…
…sunt accesate prin intermediul unei scări interioare spațioase, ai cărei pereți sunt din beton aparent vopsit în roșu închis, contrastând cu podelele și tocurile de ușă din mozaic alb și cu balustrada neagră cu mână curentă din lemn. Luminatorul scării, încadrat de panouri rotunde din alamă, îi conferă întregii scări o atmosferă elegantă și primitoare.
Organizarea apartamentelor este compactă: un hol de intrare spațios cu garderobă inclusă duce la o bucătărie deschisă, complexă din punct de vedere spațial, la zona de servit masa și la zona de zi. Aproape toate bucătăriile sunt dotate cu cămări generoase. Acest concept de trai permite un grad mare de posibilități de circulație, mai ales din perspectiva unei locuirii accesibile (din punctul de vedere al vârstei sau al dizabilităților de ordin fizic). Oferta spațială este îmbogățită cu o logie adăpostită. Înăuntru, predomină tonurile calde: parchet din stejar lucios, tencuială fină rezistentă la uzură, tonuri ceramice deschise și subtile în băi, bucătării și cămări.
*Logia continuă livingul la exterior
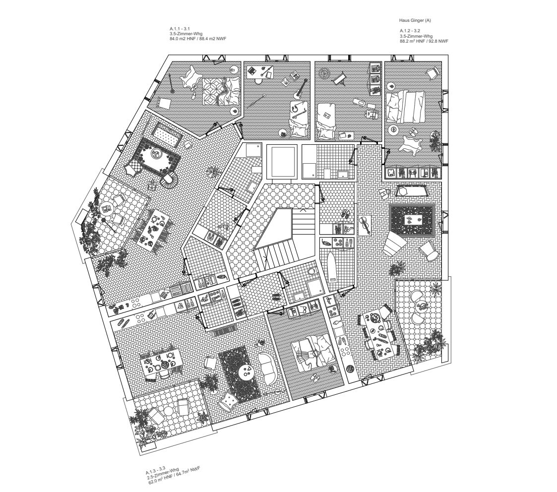
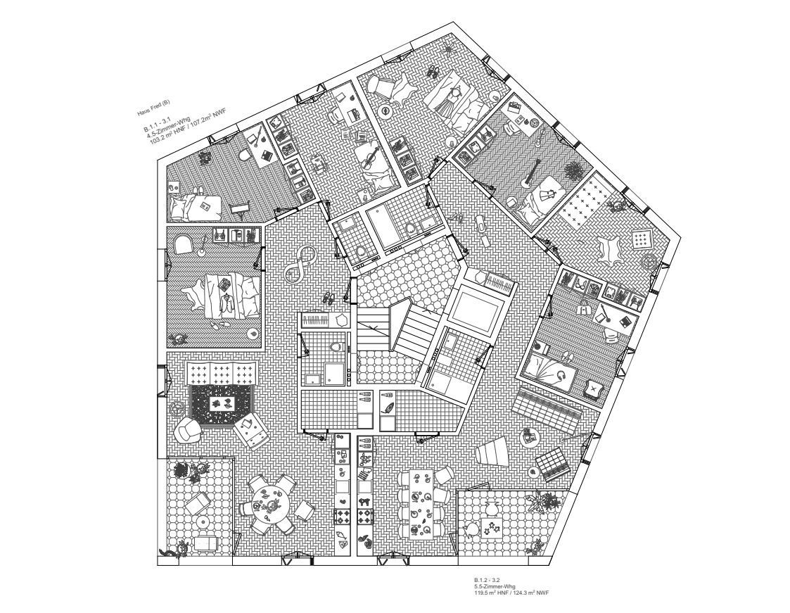
În proiect au fost implementate cele 20 de unități rezidențiale cerute prin temă. Rezervele de utilizare au fost complet epuizate. Zonele de cămară adaugă în jur de 80 de metri pătrați la spațiul util principal de 1.790 m², adică o medie de 4 m² per unitate rezidențială. Cele 20 de apartamente primesc fiecare un loc de parcare și sunt distribuite precum urmează:Apartamente cu 2,5 camere – 2 unități (20%), apartamente cu 3,5 camere – 8 unități (40%), apartamente cu 4,5 camere – 5 unități (25%), apartamente cu 5,5 camere – 3 unități (15%).
Economie și ecologie
Volumele simple și forma de bază compactă sunt foarte eficiente: ele determină un raport optim al suprafețelor, respectiv anvelope de dimensiuni reduse pentru clădiri. Măsurile suplimentare care au drept rezultat un consum minim de energie sunt izolarea generoasă a anvelopantei clădirii și încălzirea cu ajutorul unei pompe de căldură geotermale. Echilibrul energetic este optimizat în continuare prin utilizarea energiei solare active. Aceste măsuri duc la o reducere semnificativă a operării și prin urmare și a costurilor auxiliare de închiriere.
*Plan de ansamblu al etajului 1
*Plan etaj current, corp A
*Articol publicat inițial în Zeppelin 164
DE PROIECTE
De același birou:
Urbanizarea periferiei elvețiene. Igual Guggenheim Architects: 2 proiecte de locuințe colective
Șapte case mari. Igual & Guggenheim: locuințe sociale în Mühlau, Elveția


























